适用范围:
·紧巧设计,配置快速接头(无需另配),节约成本。 ·压力开关型运用磁性感应原理设计,发生器整体美观紧致,重量轻巧,使用更方便。·*佳供气压力4.5-5bar型号及其含义:
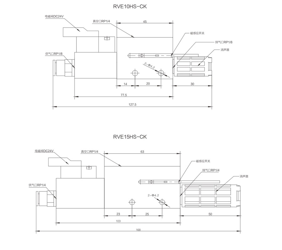
(1) 型号 RVE-10、RVE-15
RVE技术参数:
产品外形尺寸: