GD231-DN6,GD231-DN8,GD232-DN25,GD232-DN32,GD232-DN40,GD232-DN50,
应用范围
燃气燃油、环保设备、加湿设备、暖通空调、水处理、锅炉、包装机械、
纺织印染、清洗设备、园林喷灌、啤酒饮料、食品加工等控制系统。
技术参数
公称通径
DN3-DN50
原理结构
直动式、分步直动式
阀体材质
304、316
膜片材料
NBR、FKM、EPDM、硅胶
环境温度
-10℃~+60℃(防爆型-20℃~+50℃)
流体温度
T2组:-10℃~80℃;T2组:-10℃~120℃; T4组:-10℃~220℃; 350℃;其他温度特制
适用流体
气体、液体
流体粘度
≤22mm2/S
连接方式
内螺纹(国标或NPT)
安装方式
水平安装,线圈向上(禁止垂直安装)
防护等级
IP65(防爆型)、IP54(普通)
电气参数
电源电压
220V、110VAC 50/60Hz; 24VDC 其他电压请咨询我司
额定功率
防爆型AC:17VA; DC:20W 普通型见规格参数表
电压公差
±10%
电气连接
普通型:标准接线盒
隔爆型:M14*1.5,接线盒
*以上为启动后平稳工作时功率,启动时功率会增大。
一进一出
□常闭式---当电磁阀线圈通电时,2通向1,1与3关闭。
当电磁阀线圈断电时,2与1关闭,1通向3通。
□常开式---当电磁阀线圈断电时,3通向1,1与2关闭。
当电磁阀线圈通电时,3与1关闭,1通向2通。
□一进二出
1:当电磁阀线圈通电时,1通向2通,1与3关闭。
2:当电磁阀线圈断电时,1与2关闭,1通向3。
□二进一出
1:当电磁阀线圈通电时,2通向1,3与1关闭。
2:当电磁阀线圈断电时,2与1关闭,3通向1通。
型号
GD231(1型阀体)
DN3
DN4
DN5
DN6
DN8
适用压力
小于60Mpa
接口螺纹
G1/4或特殊螺纹
G3/8或特殊螺纹
304不锈钢
备注
此阀在35Mpa压力下,阀体尺寸为长120mm、宽40mm
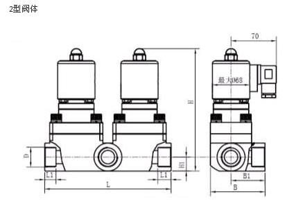
GD232(2型阀体)
连接尺寸
L(mm)
L1(mm)
B(mm)
B1(mm)
H(mm)
H1(mm)
DN15
G1/2
165
14
70
43.5
185
18
40Mpa
SS304
SS316
(特制)
DN20
G3/4
195
17
80
49
190
21
DN25
G1
200
DN32
G5/4
235
19
90
56.5
26
DN40
G3/2
260
22
110
71
215
30
DN50
G2
345
25
145
93
270
38