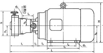
CY-Y系列油泵电动组是CY14-1B系列高压轴向柱塞泵和Y系列异步电动机的机电一体化元件,它于传统的油泵-联轴器-电动传动装置相比,省去了联轴器和泵支架,安装底板可缩小1/2以上,轴向总长度可减小1/3~1/4,具有结构紧凑、体积小、重量轻、振动小,噪音低、使用方便等优点,因此,油泵电机组具有显著的技术经济效率。它可广泛用于机床、锻压、矿山、冶金、船舶、注塑机等用异步电机驱动的液压设备。
型号标志:
| 技术参数表 |
|
油泵电机组型号
|
电机功率(KW)
|
同步转速(r/min)
|
推荐油泵
使用压力和流量
|
油泵变量型式
|
安装外形尺寸
|
|
额定压力(MPa)
|
最大流量(I/min)
|
SMC
DPL
ZB
|
Y
|
MY
|
I1
|
I2
|
I3
|
I4
|
I5
|
I6
|
L
|
H0
|
H
|
h5
|
h6
|
D0
|
B0
|
b
|
b1
|
d0
|
|
10*CY-Y112M-6
|
2.2
|
1000
|
8
|
10
|
√
|
|
|
186
|
40
|
92
|
140
|
85
|
180
|
586
|
112
|
265
|
71
|
15
|
240
|
245
|
190
|
190
|
12
|
|
8~31.5
|
10~2.5
|
|
√
|
√
|
|
10*CY-Y132S-6
|
3.0
|
1000
|
12
|
10
|
√
|
|
|
186
|
40
|
107
|
140
|
85
|
200
|
636
|
132
|
315
|
71
|
18
|
275
|
280
|
216
|
210
|
12
|
|
12~31.5
|
10~4
|
|
√
|
|
|
10*CY-Y132M1-6
|
4.0
|
1000
|
20
|
10
|
√
|
|
|
186
|
40
|
107
|
178
|
85
|
238
|
671
|
132
|
315
|
71
|
18
|
275
|
280
|
216
|
210
|
12
|
|
6*CY-Y132M2-6
|
5.5
|
1000
|
25
|
10
|
√
|
|
|
186
|
40
|
107
|
178
|
85
|
238
|
671
|
132
|
315
|
71
|
18
|
275
|
280
|
216
|
210
|
12
|
|
10*CY-Y160M-6
|
7.5
|
1000
|
31.5
|
10
|
√
|
|
|
186
|
40
|
119
|
210
|
85
|
270
|
726
|
160
|
385
|
71
|
20
|
335
|
330
|
254
|
265
|
15
|
|
10*CY-Y100L2-4
|
3.0
|
1500
|
8
|
16
|
√
|
|
|
186
|
40
|
74
|
140
|
85
|
176
|
556
|
100
|
245
|
71
|
14
|
245
|
205
|
160
|
180
|
12
|
|
8~31.5
|
16~4
|
|
√
|
√
|
|
10*CY-Y112M-4
|
4.0
|
1500
|
12
|
16
|
√
|
|
|
186
|
40
|
92
|
140
|
85
|
180
|
586
|
112
|
265
|
71
|
15
|
240
|
245
|
190
|
190
|
12
|
|
12~31.5
|
16~16
|
|
√
|
|
|
6*CY-Y132S-4
|
5.5
|
1500
|
16
|
16
|
√
|
|
|
186
|
40
|
107
|
140
|
85
|
200
|
636
|
132
|
315
|
71
|
18
|
275
|
280
|
216
|
210
|
12
|
|
10*CY-Y132M-4
|
7.5
|
1500
|
25
|
16
|
√
|
|
|
186
|
40
|
107
|
178
|
85
|
238
|
671
|
132
|
315
|
71
|
18
|
275
|
280
|
216
|
210
|
12
|
|
10*CY-Y160M-4
|
11
|
1500
|
31.5
|
16
|
√
|
|
|
186
|
40
|
119
|
210
|
85
|
270
|
771
|
160
|
385
|
71
|
20
|
335
|
330
|
254
|
265
|
15
|
|
| |
|
油泵电机组型号
|
电机功率(KW)
|
同步转速(r/min)
|
推荐油泵
使用压力和流量
|
油泵变量型式
|
安装外形尺寸(mm)
|
|
额定压力(MPa)
|
最大流量(I/min)
|
SMC
DPL
|
Y
|
MY
|
I1
|
I2
|
I3
|
I4
|
I5
|
I6
|
L
|
H0
|
H
|
h5
|
h6
|
D0
|
B0
|
b
|
b1
|
d0
|
|
25*CY-Y132S-6
|
3.0
|
1000
|
5
|
25
|
√
|
|
|
230
|
45
|
107
|
140
|
112
|
200
|
685
|
132
|
315
|
83
|
18
|
275
|
280
|
216
|
210
|
12
|
|
5~31.5
|
25~4
|
|
√
|
√
|
|
25*CY-Y132M1-6
|
4.0
|
1000
|
8
|
25
|
√
|
√
|
|
230
|
45
|
107
|
178
|
112
|
238
|
720
|
132
|
315
|
83
|
18
|
275
|
280
|
216
|
210
|
12
|
|
8~31.5
|
25~6
|
|
√
|
√
|
|
25*CY-Y132M1-6
|
5.5
|
1000
|
12
|
25
|
√
|
|
|
230
|
45
|
107
|
178
|
112
|
238
|
720
|
132
|
315
|
83
|
18
|
275
|
280
|
216
|
210
|
12
|
|
12~31.5
|
25~10
|
|
|
|
|
25*CY-Y160M-6
|
7.5
|
1000
|
16
|
25
|
√
|
|
|
230
|
45
|
119
|
210
|
112
|
270
|
820
|
160
|
385
|
83
|
20
|
335
|
330
|
254
|
265
|
15
|
|
25*CY-Y160L-6
|
11
|
1000
|
25
|
25
|
√
|
|
|
230
|
45
|
119
|
254
|
112
|
314
|
865
|
160
|
385
|
83
|
20
|
335
|
330
|
254
|
265
|
15
|
| |
|
|
31.5
|
25
|
√
|
|
|
230
|
45
|
133
|
279
|
112
|
349
|
935
|
180
|
430
|
83
|
22
|
380
|
355
|
279
|
285
|
15
|
|
25*CY-Y112M-4
|
4.0
|
1500
|
5
|
40
|
√
|
|
|
230
|
45
|
92
|
140
|
112
|
180
|
635
|
112
|
265
|
83
|
15
|
240
|
245
|
190
|
190
|
12
|
|
5~31.5
|
40~6
|
|
√
|
√
|
|
25*CY-Y132S-4
|
5.5
|
1500
|
8
|
40
|
√
|
|
|
230
|
45
|
107
|
140
|
112
|
200
|
685
|
132
|
315
|
83
|
18
|
275
|
280
|
216
|
210
|
12
|
|
8~31.5
|
40~10
|
|
√
|
√
|
|
25*CY-Y132M-4
|
7.5
|
1500
|
12
|
40
|
√
|
|
|
230
|
45
|
107
|
178
|
112
|
238
|
720
|
132
|
315
|
83
|
18
|
275
|
280
|
216
|
210
|
12
|
|
12~31.5
|
40~15
|
|
√
|
|
|
25*CY-Y160M-4
|
11
|
1500
|
16
|
40
|
√
|
|
|
230
|
45
|
119
|
210
|
112
|
270
|
820
|
160
|
385
|
83
|
20
|
335
|
330
|
254
|
265
|
15
|
|
25*CY-Y180M-4
|
18.5
|
1500
|
25
|
40
|
√
|
|
|
230
|
45
|
119
|
241
|
112
|
311
|
885
|
180
|
430
|
83
|
22
|
380
|
355
|
279
|
285
|
15
|
|
25*CY-Y180L-4
|
22
|
1500
|
31.5
|
40
|
√
|
|
|
230
|
45
|
133
|
279
|
112
|
349
|
935
|
180
|
430
|
83
|
22
|
380
|
355
|
279
|
285
|
15
|
|
10PCY-Y112M-6,10LCY-Y112M-6,10ZCY-Y112M-6,10MYCY-Y112M-6,10BCY-Y112M-6,
10CCY-Y132S-6,10YCY-Y132S-6,10DCY-Y132S-6,10SCY-Y132S-6,10MCY-Y132S-6,
10PCY-Y132S-6,10LCY-Y132S-6,10ZCY-Y132S-6,10MYCY-Y132S-6,10BCY-Y132S-6,
10CCY-Y132M1-6,10YCY-Y132M1-6,10DCY-Y132M1-6,10SCY-Y132M1-6,10MCY-Y132M1-6,
10PCY-Y132M1-6,10LCY-Y132M1-6,10ZCY-Y132M1-6,10MYCY-Y132M1-6,10BCY-Y132M1-6,
10CCY-Y132M2-6,10YCY-Y132M2-6,10DCY-Y132M2-6,10SCY-Y132M2-6,10MCY-Y132M2-6,
10PCY-Y132M2-6,10LCY-Y132M2-6,10ZCY-Y132M2-6,10MYCY-Y132M2-6,10BCY-Y132M2-6,
10CCY-Y160M-6,10YCY-Y160M-6,10DCY-Y160M-6,10SCY-Y160M-6,10MCY-Y160M-6,
10PCY-Y160M-6,10LCY-Y160M-6,10ZCY-Y160M-6,10MYCY-Y160M-6,10BCY-Y160M-6,
10CCY-Y100L2-4,10YCY-Y100L2-4,10DCY-Y100L2-4,10SCY-Y100L2-4,10MCY-Y100L2-4,
10PCY-Y100L2-4,10LCY-Y100L2-4,10ZCY-Y100L2-4,10MYCY-Y100L2-4,10BCY-Y100L2-4,
10CCY-Y112M-4,10YCY-Y112M-4,10DCY-Y112M-4,10SCY-Y112M-4,10MCY-Y112M-4,
10PCY-Y112M-4,10LCY-Y112M-4,10ZCY-Y112M-4,10MYCY-Y112M-4,10BCY-Y112M-4,
10CCY-Y132S-4,10YCY-Y132S-4,10DCY-Y132S-4,10SCY-Y132S-4,10MCY-Y132S-4,
10PCY-Y132S-4,10LCY-Y132S-4,10ZCY-Y132S-4,10MYCY-Y132S-4,10BCY-Y132S-4,
10CCY-Y132M-4,10YCY-Y132M-4,10DCY-Y132M-4,10SCY-Y132M-4,10MCY-Y132M-4,
10PCY-Y132M-4,10LCY-Y132M-4,10ZCY-Y132M-4,10MYCY-Y132M-4,10BCY-Y132M-4,
10CCY-Y160M-4,10YCY-Y160M-4,10DCY-Y160M-4,10SCY-Y160M-4,10MCY-Y160M-4,
10PCY-Y160M-4,10LCY-Y160M-4,10ZCY-Y160M-4,10MYCY-Y160M-4,10BCY-Y160M-4,