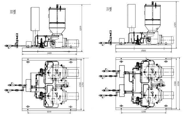
一、使用条件 HB-P系列电动润滑泵适用于润滑点多、分布范围广、给油频率高、公称压力为40(20MPa)的单、双线干(稀)油集中润滑系统中,作为供送润滑剂的装置,还可配备移动小车、胶管、油枪及电缆组成移动式电动润滑泵装置以便用于给油频率低,润滑点少,给油量大且不便于采用集中润滑的单机设备,进行移动给油,贮油桶还设有油位自动报警装置,如配以相应的电气控制箱还可实现自动控制,并对系统进行监视。
二、技术参数
使用介质为锥入度不低于220(25℃,150g)1/10mm的润滑脂(NLGI0#~3#)和粘度等级不小于N68的润滑油。