一、产品[水用电磁阀]的详细资料:
ZCS-10-DN15,ZCS-10-DN20,ZCT-10-DN25,ZCT-10-DN32,ZCS-10-DN65,ZCT-10-DN80,水用电磁阀
产品型号:ZCS
产品名称:水用电磁阀
产品特点:本阀选用于以水或液体为工作介质,可自动控制或远程控制水、油、液体等工作介质管路的通断。由于本阀采用橡胶密封,故对工作介质的清洁度大大减低,具有启闭迅速,可靠性高等优点。 水用电磁阀价格,水用电磁阀报价,水用电磁阀厂家。
二、型号规格说明:
三、原理:
本阀为二次开阀的先导式电磁阀,其结构主要由导阀和主阀组成,主阀采用橡胶密封结构。常位时,活动铁芯封住导阀口,阀腔内压力平衡,主阀口封闭。当线圈通电时,产生电磁力将活动铁芯吸上,主阀腔内的介质自导阀口外泄,以至产生压力差,膜片或阀杯被迅速托起,主阀口开启,阀便呈通路了。当线圈断电,磁场消失,活动铁芯复位,封闭导阀口,导阀和主阀腔内压力平衡后,阀又呈关闭状态。
四、技术参数:
工作介质
水、粘度≤4°E油及其它非腐蚀性液体
介质温度°C
≤60
公称压力(Mpa)
1.0
工作压差(Mpa)
0.05~1.0
0.1~1.0
0.15~1.0
电源电压
AC200V,其余规格可作特殊订货(36V、12V、24V)
流量系数(Kv)
按JB/T7352-94规定
泄漏量(ml/min)
按JB/T7352-94.F规定
公称通径(mm)
10
15
20
25
32
40
50
65
80
100
125
150
200
250
300
功耗(VA)
17
30
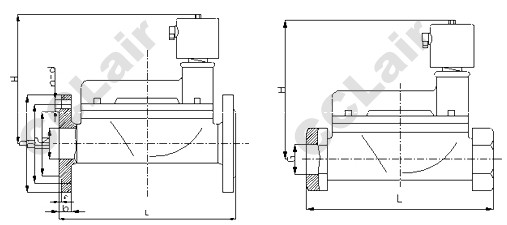
五、ZCS法兰电磁阀安装尺寸:
ZCS-10-DN25,ZCS-10-DN32,ZCS-10-DN40,ZCS-10-DN50,ZCS-10-DN80,ZCS-10-DN100, ZCS-10-DN125,ZCS-10-DN150,ZCS-10-DN200,cclair,ZCS-10-DN250,ZCS-10-DN300, ZCT-10-DN15,ZCT-10-DN20,ZCT-10-DN40,ZCT-10-DN50,ZCT-10-DN65,ZCT-10-DN100, ZCT-10-DN125,ZCT-10-DN150,ZCT-10-DN200,ZCT-10-DN250,ZCT-10-DN300,