ZAJQ941-16-DN15,ZAJQ941-25-DN20,ZAJQ941-40-DN25,ZAJQ971-16-DN32,ZAJQ971-25-DN40,电动二通调节球阀
一、产品[电动二通调节球阀(法兰式、对夹式、台湾三片式丝扣)]的详细资料:
产品型号: ZAJQ型
产品名称: 电动二通调节球阀(法兰式、对夹式、台湾三片式丝扣)
产品特点: ZAJQ型智能电动球阀采用一体化结构,与DTR电动执行机构相配,有输入控制信号(4~20mADC或1-5VDC)及单相电源即可控制运转,具有功能强、体积小、轻便宜人、性能可靠、配套简单、流通能力大、特别适合于介质是粘稠,含颗粒,纤维性质的场合。目前广泛应用于食品、环保、轻工、石油、造纸、化工、教学和科研设备、电力等行业的工业自动控制系统中。
二、阀体:
形式:角型单座铸造阀
公称通径:20-300mm
公称形式:PN1.6 4.0 6.4Mpa
连接形式:法兰式按JB78-59 JB79-59
材料:HT200 ZG230—450 ZG1Cr18Ni9Ti ZG0Cr18Ni12Mo2Ti
三、阀内组件:
阀芯形式: O型阀芯
流量特性: 快开型
材 料: 1Cr18Ni9Ti 0Cr17Ni12Mo2衬聚四氟乙烯
密封面材料:聚四氟乙烯、PPL、硬密封
四、具有理想流量特性表:
|
公称通径(DN)
|
不同开度角下的Kv值
|
||||||||
|
温度
|
10o
|
20o
|
30o
|
40o
|
50o
|
60o
|
70o
|
80o
|
90o
|
|
50
|
2
|
4
|
9
|
17
|
32
|
60
|
97
|
151
|
215
|
|
80
|
6
|
11
|
22
|
44
|
83
|
155
|
250
|
389
|
550
|
|
100
|
9
|
18
|
35
|
71
|
133
|
248
|
398
|
620
|
890
|
|
150
|
20
|
40
|
8/0
|
160
|
300
|
560
|
900
|
1400
|
2000
|
|
200
|
36
|
72
|
143
|
286
|
737
|
1002
|
1611
|
2506
|
3580
|
|
250
|
57
|
113
|
226
|
453
|
848
|
1582
|
2543
|
3955
|
5650
|
|
300
|
81
|
163
|
325
|
651
|
1220
|
2278
|
3661
|
5695
|
8100
|
五、执行机构:
类型:可选PSQ、DTR和3810系列电子式角行程执行机构。防爆型选用3810系列。
技术参数和性能:请参阅相应执行机构与阀门定位器说明书。
六、电动调节球阀规格参数:
|
公称通径DN
|
15
|
20
|
25
|
32
|
40
|
50
|
65
|
80
|
100
|
125
|
150
|
200
|
250
|
300
|
|
流量系数(Kv)
|
20
|
38
|
72
|
110
|
170
|
215
|
380
|
550
|
890
|
1400
|
2000
|
3580
|
5650
|
8100
|
|
可调动作范围
|
0-90o
|
|||||||||||||
|
允许压差△P
|
小于公称压力(1.6MPa)
|
|||||||||||||
|
泄漏量Q
|
按AP1598标准测试 无泄漏
|
|||||||||||||
|
环境温度℃
|
-20~60℃
|
|||||||||||||
|
基本误差
|
±2.5%
|
|||||||||||||
|
回差
|
±2.5%
|
|||||||||||||
|
死区
|
1%
|
|||||||||||||
|
可调范围
|
250:1
|
350:1
|
||||||||||||
|
配用执行机构
|
PSQ101, 381RSA-05DTR-05
|
DTR-10 PSQ201, DTR-20381RSC-30
|
DTR-40381RSC-50
|
PSQ701DTR-60
|
||||||||||
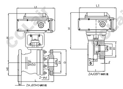
七、ZAJQ941型电动球阀外形尺寸:
|
公称通径DN
|
L
|
D
|
H
|
L1
|
D1
|
b
|
Z-Ød
|
H1
|
L2
|
|
压力
|
1.6/2.5/4.0
|
1.6/2.5/4.0
|
1.6/2.5/4.0
|
1.6/2.5/4.0
|
1.6/2.5/4.0
|
||||
|
15
|
130/130/130
|
95
|
275
|
157
|
65
|
14/16/16
|
4-14
|
48
|
208
|
|
20
|
140/140/140
|
105
|
280
|
157
|
75
|
14/16/16
|
4-14
|
53
|
208
|
|
25
|
150/150/150
|
115
|
287
|
157
|
85
|
14/16/16
|
4-14
|
58
|
208
|
|
32
|
165/165/180
|
135
|
384
|
208
|
100
|
16/18/18
|
4-18
|
68
|
208
|
|
40
|
180/180/200
|
145
|
312
|
208
|
110
|
16/18/18
|
4-18
|
73
|
208
|
|
50
|
200/200/220
|
160
|
325
|
208
|
125
|
16/20/20
|
4-18
|
80
|
208
|
|
65
|
220/220/250
|
180
|
335
|
256
|
145
|
18/22/22
|
4-18/8-18/8-18
|
90
|
256
|
|
80
|
250/250/280
|
195
|
365
|
256
|
160
|
20/22/22
|
8-18
|
98
|
256
|
|
100
|
280/280/320
|
215/230/230
|
400
|
256
|
180/190/190
|
20/24/24
|
8-18/8-23/8-23
|
120
|
256
|
|
125
|
320/320/400
|
245/270/270
|
420
|
256
|
210/220/220
|
24/28/30
|
8-23/8-25/8-25
|
140
|
256
|
|
150
|
360/360/400
|
280/300/300
|
440
|
256
|
240/250/250
|
24/28/30
|
8-23/8-25/8-25
|
167
|
256
|
|
200
|
400/400/550
|
335/360/375
|
470
|
256
|
295/310/320
|
26/34/38
|
12-23/12-25/12-30
|
210
|
256
|
|
250
|
630 750
|
405 470
|
545
|
380
|
|||||
|
300
|
750 870
|
460 530
|
580
|
380
|

八、ZAJQ971超短型电动对夹式球阀外形尺寸:
|
公称通径DN
|
L
|
H
|
D
|
D1
|
D2
|
b
|
f
|
L1
|
Z-Ød
|
|
15
|
35
|
275
|
90
|
65
|
45
|
14/16
|
2
|
157
|
4-12
|
|
20
|
38
|
280
|
100
|
75
|
55
|
14/16
|
2
|
157
|
4-12
|
|
25
|
42
|
287
|
110
|
85
|
65
|
14/16
|
2
|
157
|
4-12
|
|
32
|
50
|
297
|
130
|
100
|
78
|
16/18
|
2
|
208
|
4-16
|
|
40
|
60
|
312
|
145
|
110
|
85
|
16/18
|
3
|
208
|
4-16
|
|
50
|
70
|
325
|
160
|
125
|
100
|
16/20
|
3
|
256
|
4/8-16
|
|
65
|
95
|
335
|
180
|
145
|
120
|
18/22
|
3
|
256
|
4/8-16
|
|
80
|
118
|
365
|
190
|
160
|
135
|
20/22
|
6
|
256
|
8-16
|
|
100
|
140
|
400
|
215/230
|
210/220
|
155/160
|
20/28
|
3
|
256
|
8-16/20
|
|
125
|
175/195
|
420
|
245/270
|
210/220
|
185/188
|
24/28
|
3
|
256
|
8-16/24
|
|
150
|
210/260
|
440
|
280/300
|
240/218
|
210/218
|
24/28
|
3
|
256
|
8-20/24
|
注:表中数据XX/XX表示压力:1.6MPa/2.5MPa
ZAJQ941-16-DN20,ZAJQ941-16-DN25,ZAJQ941-16-DN32,ZAJQ941-16-DN40,ZAJQ941-16-DN50,ZAJQ941-16-DN65,