返回
液压辅助元件
首页
>
了解产品
>
液压辅助元件
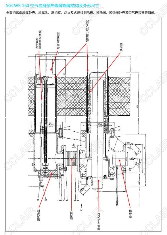
SGCWR160,空气自身预热辐射管烧嘴
2016-11-18 10:41
1097
信息概况
价格:
未填
型号:
SGCWR160
发货:
3天内
发送询价
SGCWR160,空气自身预热辐射管烧嘴
联系方式
姓名:销售员 1661(先生)
电话:
13861877712
传真:0510-82328771
地区:江苏-无锡市
地址:
无锡市会北路28-135
QQ:
2355802919
0
人关注
0
人点赞
举报
评分:
分
扫一扫访问当前网页
复制链接
二维码
短信
邮件
关闭
同类了解产品
CXL-25x80,CXL-40x100,CXL-63x180,CXL-100x80,CXL-160x100,CXL-250x180,CXL-400x80,CXL-630x100,CXL-800x180,X-CX25x95-CX40x115-CX63x140-CX100x190-CX160x198-CX250x268-CX400x281-CX630x329-CX800x
Best-nr0200,Best-nr0200M,4V110-C,4V210-W,4V210-C,DZT-022,EVI7/9,SRS2-5D,SRS2-8D,710,3130,3130E,0543 001-00,0545 001-0015802,BD-A,BD-B,BD-C,VX2120,2W-13MM,2W-16MM,2W-20MM,2W-16F,AB310,AB310E,AB410,AB410E,AB510,16431,16432防爆电磁阀
XKL-A-0911,XKL-B-1121,XKL-B-1231,XKL-C-1341,XKL-C-1451,XKL-E-2081,XKL-D-1661,XKL-D-1871防爆电磁阀
ACE2-M2,ACE3-M1,ACE4-M1,ACE5-M1,ACE6-M1,ACE7-M1,ACE8-M1,ACE9-M2,ACE10-M2风冷却器
AF0510T-CA,AJ0510T-CA,AW0607T-CA,AH0607T-CA,AH0608T-CA,AH0608TL-CA,AH1012T-CA,AJ1012T-CA,AF1025T-CA,AJ1025T-CA,AH1417T-CA,AH1490T-CA,AH1680T-CA,AH2431T-CA,AH3818T-CA分冷却器
CDZ-25Y1/35Y1/42Y1,CDZ型充充氮车
取消
发送询价
分享好友
了解产品首页
频道列表
我要评论